Grúas Bandera

+52 (866) 100 76 89

866) 1007690 (866) 6380700 (81) 80884130 (442) 4235583

Especiales para Centros de Trabajo y Procesos Auxiliares

Solución compacta y versátil para manipulación de materiales.


Las grúas bandera son ideales para áreas de armado, soldadura o maquinado.

Pueden instalarse de dos maneras:

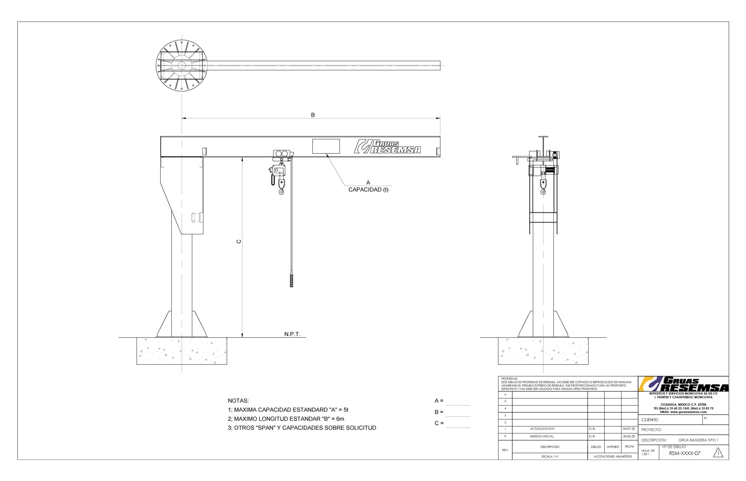
  • Fijas a una columna con una rotación máxima de 220° (normalmente 180°).
  • Fijas al piso con cimentación especial, permitiendo un giro de 360° o limitado según la necesidad del área.

Gracias a su diseño, ofrecen agilidad en la manipulación de cargas, optimizando los procesos productivos y reduciendo tiempos de operación.

Rotación Adaptable

Configuración de 180°, 220° o 360° según el tipo de instalación.

Instalación Flexible

Puede ser fija a una columna existente o montada en el piso con cimentación

Eficiencia en Procesos

Ideal para Armado, Soldadura y Maquinado

Especificaciones Técnicas

Característica Detalle
Tipo de grúa
Bandera
Aplicaciones
Areas de armado, soldadura o maquinado
Capacidad de operación
Hasta 5t y 6m de alcance (estándar)
Servicio
Moderado
Vida útil
5,000 a 10,000 horas (CMAA C y D)
Sistema de elevación
Polipasto MISIA
Modo de operación
Desde piso, con botonera colgante o radiocontrol

Casos de Uso / Aplicaciones

Preguntas Frecuentes

La fija a columna aprovecha una estructura existente, mientras que la fija al piso requiere cimentación pero ofrece mayor rango de giro (hasta 360°).

 

Se personaliza según la aplicación, con capacidad para manejar cargas ligeras y medianas.

Sí, la grúa puede configurarse con rotación manual o motorizada, según las necesidades del cliente.